Piso de lujo en calle Alcalá

Salamanca, Madrid

2.600.000€

 

Exclusiva vivienda de lujo en plena Calle Alcalá, en el corazón del codiciado barrio de Goya (Barrio de Salamanca).

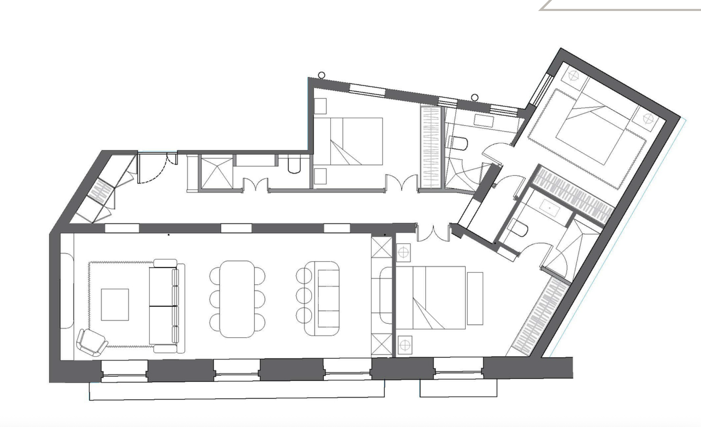
Esta magnífica propiedad cuenta con 140 m² y se sitúa en una quinta planta, lo que le proporciona una excelente luminosidad durante todo el día. La vivienda ofrece un amplio y elegante espacio abierto de salón-comedor-cocina, ideal para disfrutar de un ambiente moderno y funcional, perfecto tanto para la vida diaria como para recibir invitados. Dispone de tres dormitorios y tres baños completos, garantizando comodidad y privacidad para toda la familia. El edificio cuenta con portero físico y la vivienda tiene calefacción individual para un mayor confort.

El IBI anual es de 921 €.

Una oportunidad única para vivir o invertir en una de las zonas más exclusivas y mejor comunicadas de Madrid, rodeada de comercios, restaurantes y todos los servicios.

Características básicas

  • 140 m² construidos

  • 3 habitaciones

  • 3 baños

  • Recién reformado

  • Amplio salón- comedor

Edificio

  • Planta 5ª interior

  • Con ascensor

  • Portero físico

Equipamiento

  • Aire acondicionado

Contáctanos

info@soleromadrid.com
+34 711247599

Nuñez de Balboa 13, 3ro D.
Código postal 28045