Piso a reformar Paseo de las Delicias

Arganzuela, Madrid

940.000€

 

Solero Madrid presenta una oportunidad excepcional para particulares e inversores, con alta rentabilidad y un enorme potencial de revalorización, en una de las zonas más consolidadas y mejor comunicadas del centro de Madrid, en el distrito de Arganzuela, a escasos minutos de Atocha, Delicias y Legazpi.

La vivienda se ubica en un edificio señorial, con un portal amplio y luminoso, dotado de tres ascensores, totalmente adaptado a personas con movilidad reducida. El inmueble cuenta con servicio de portería física 24 horas y sistema de videovigilancia, ofreciendo un entorno seguro y tranquilo.

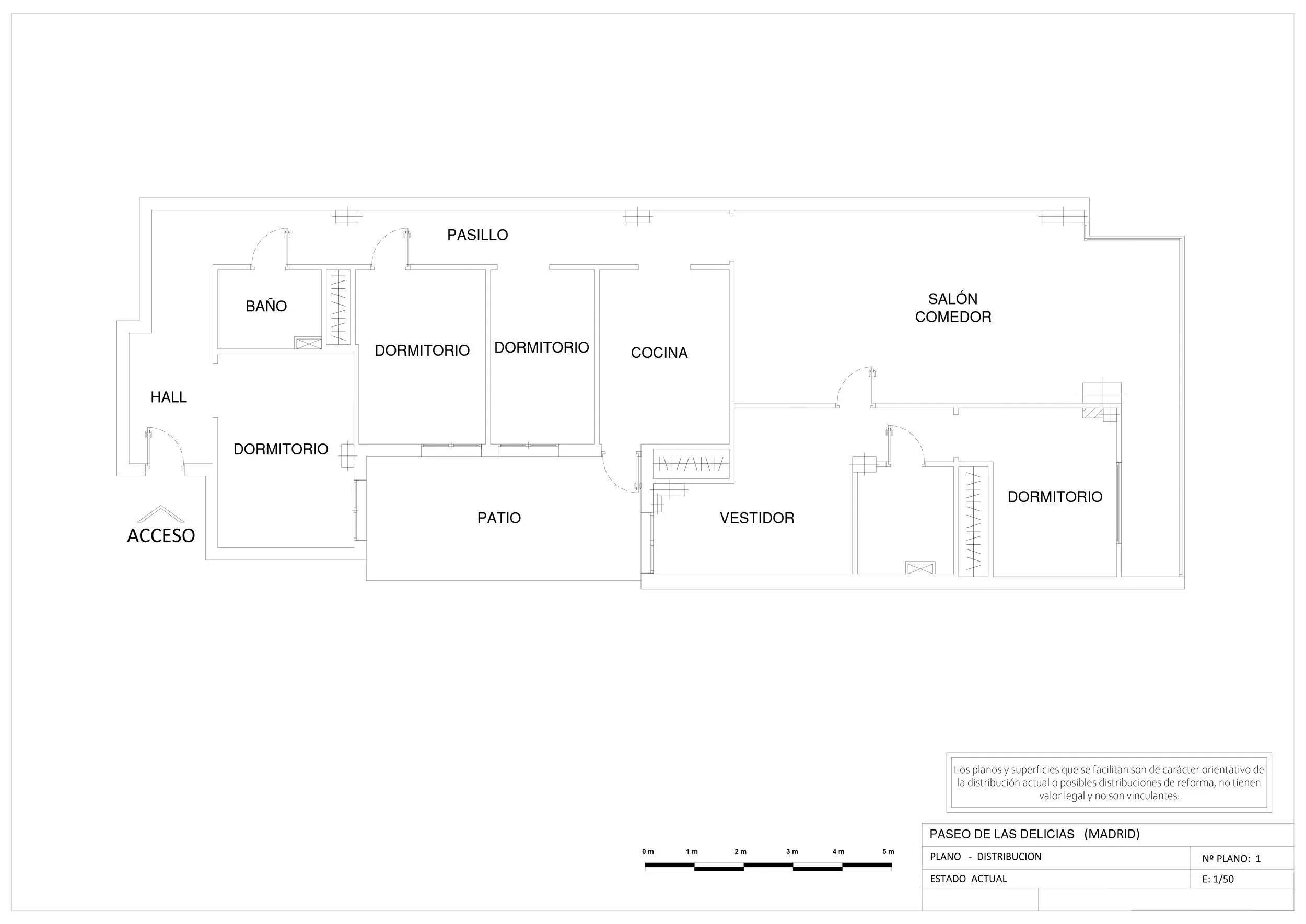
Se trata de una primera planta con altura real de segunda, con una superficie construida total de 200 m², incluyendo plaza de garaje. La vivienda dispone de 160 m², destacando por su magnífica terraza incorporada al salón en formato galería, que proporciona una excepcional entrada de luz natural durante todo el día. Además, cuenta con el uso y disfrute de una segunda terraza privada de 20 m², con acceso desde la cocina, perfecta como zona chill-out, espacio de reunión o área verde.

La distribución interior es amplia y versátil: cinco dormitorios de generosas dimensiones con armarios empotrados, dos cuartos de baño completos, gran salón-comedor con ventanales de suelo a techo y vistas a la calle principal, y cocina independiente con salida directa a la terraza. La vivienda cuenta con acabados de primera calidad y calefacción central por suelo radiante, garantizando confort y eficiencia.

Características básicas

  • 160 m² construidos, más garaje

  • 5 habitaciones

  • 3 baños

  • Segunda mano/buen estado

  • Garaje en finca

Edificio

  • Planta 1ª exterior

  • Con ascensor

  • Portero físico

Equipamiento

  • Aire acondicionado

Contáctanos

info@soleromadrid.com
+34 711247599

Nuñez de Balboa 13, 3ro D.
Código postal 28045